Gehe zum Inhalt

Aktueller Planungsstand Winzerla-Nord

Jena Winzerla. Bürgerplanungsrunde Juni
Jena Winzerla. Bürgerplanungsrunde Juni

Jena Winzerla. Am 14.06. tagte zum zweiten Mal die Bürgerplanungsgruppe für Winzerla-Nord. Zwei Punkte standen auf der Tagesordnung. Zum einen wurden die Ergebnisse der Safari-Woche Anfang Mai reflektiert, zum anderen waren Visionen der Teilnehmenden gefragt. In der Safari-Woche wurden viele Perspektiven von Winzerla-Nord beleuchtet: so der Ausbau und die Aufwertung von wichtigen Wegeverbindungen, Nutzen der Potenziale von ungenutzten Flächen und Spielplätzen für Treffpunkte, Verbesserung der Orientierung, Abbau von Barrieren, Reduzierung von dunklen Ecken und das Begutachten der Parkplatzsituationen. Gleichzeitig gaben Antje Backhaus und Marieke Koehn von gruppeF einen Ausblick auf die nächsten Schritte. Während in der Safari-Woche der Blick auf das Quartier Winzerla-Nord auf die räumlichen Qualitäten gerichtet war, wird in der Kunstwoche, die vom 22.08. bis 25.08. stattfindet, die soziale und kulturelle Perspektive im Vordergrund stehen. Unter anderem wurden bereits die Künstler vorgestellt, die Workshops in der Kunstwoche anbieten und wo Sie als Anwohner die Gelegenheit haben, mitzumachen und mitzugestalten.

Im zweiten Teil der Bürgerrunde fragten die Planer Backhaus und Koehn Visionen ab. In der Safari-Woche entwarfen die Planer ein „Fadenmodell“, das die Wegebeziehungen visualisiert. Es zeigte sich, dass von der Haltestelle Damaschkeweg aus zwei „Wegstränge“ existieren, die Wasserachse hoch und an REWE rechts vorbei in Richtung Seniorenheim „Am Kleinertal“. Für die letztere Strecke waren Ideen für die Gestaltung gefragt. Sabine Zander, zuständige Stadtplanerin für Winzerla, zeigte vorher noch ein paar Gestaltungsbeispiele aus anderen Städten, die zur Inspiration dienten. Danach wurden die Anwesenden aufgefordert, ihre Idee auf das Papier zu zeichnen. Vorgestellt wurden hauptsächlich Ideen zur Aufwertung der Strecke, z.B. mittels verschiedener Elemente oder durch eine farbliche Gestaltung. Die Ideen fließen als Anregungen in die Planung mit ein. Die nächste Bürgerplanungsrunde findet am Dienstag, dem 12.09. statt.

Die Ergebnisse aus der Safari-Woche vom Mai 2017

Übersicht WinzerlaNord_06_Positives_Kritisches_Wünsche_Identität
Grundlagenplan_WinzerlaNord_05_Parken
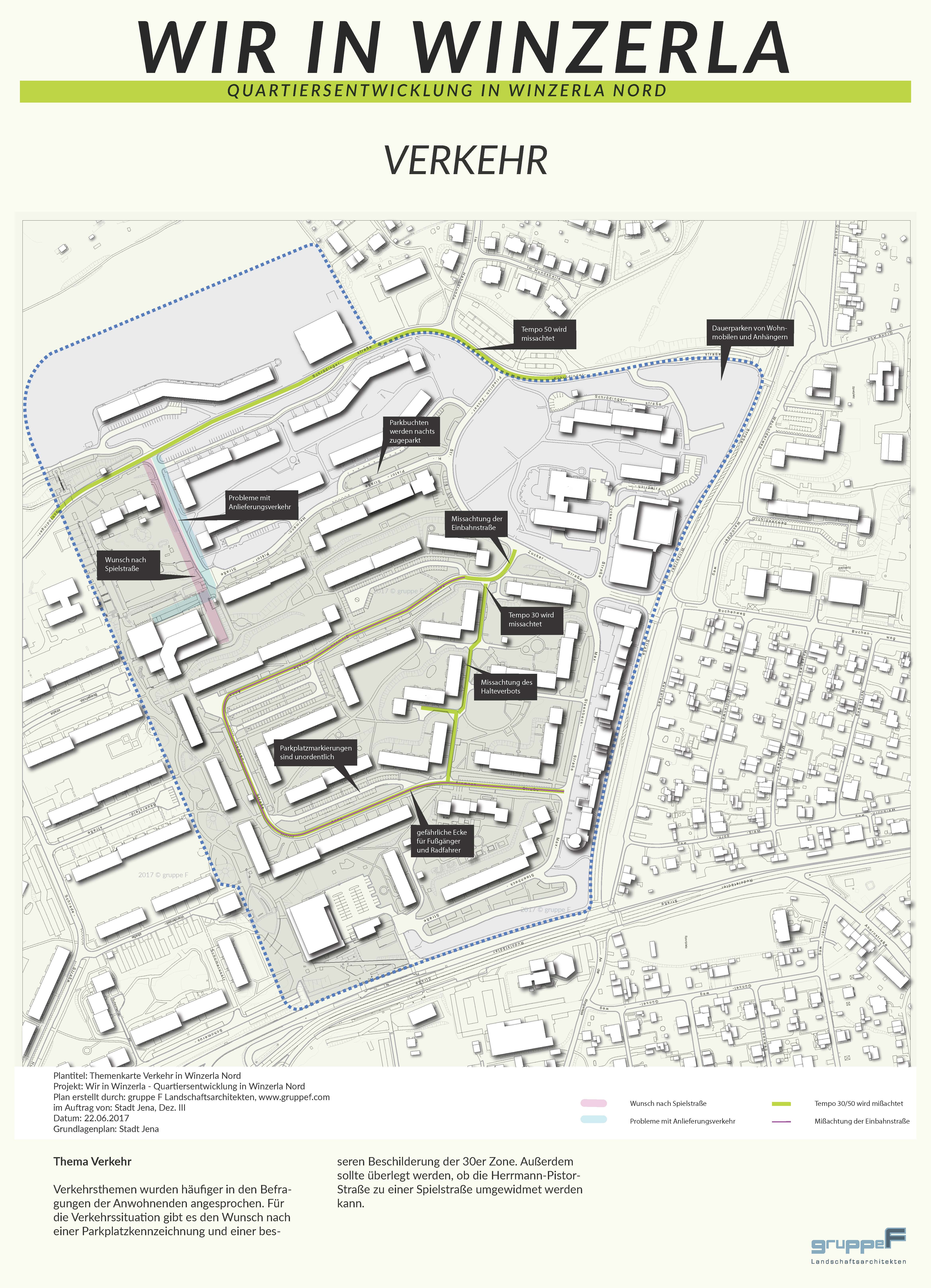
Grundlagenplan_WinzerlaNord_04_Verkehr
Grundlagenplan_WinzerlaNord_01_Aufenthalt
Grundlagenplan_WinzerlaNord_03_Dunkel
Grundlagenplan_WinzerlaNord_02_Barrieren

Safari Verkehr
Safari Verkehr
Safari Parken
Safari Parken
Safari Beleuchtung
Safari Beleuchtung
Safari Barrieren
Safari Barrieren
Safari Aufenthalt
Safari Aufenthalt
Ergebnis Bürgersteiggespräche 17.06.13
Ergebnis Bürgersteiggespräche 17.06.13
Ergebnis Bürgersteiggespräche 17.06.13
Ergebnis Bürgersteiggespräche 17.06.13
zurück zur Übersicht
Logo: Kofinanziert von der Europäischen Union Logo: Städtebauförderung von Bund, Ländern und Gemeinden

ThINKA wird durch den Freistaat Thüringen aus Mitteln des Europäischen Sozialfonds Plus gefördert.
Die Arbeit des Stadtteilbüros wird durch Städtebauförderungsmittel unterstützt.